
Le bureau chez soi est devenu l’un des sujets les plus demandés en conception intérieure. Pas seulement depuis le télétravail, mais parce que le besoin d’un espace de travail fonctionnel, intégré et cohérent avec le reste du logement est une vraie question d’aménagement. Un bureau réussi n’est pas forcément une pièce dédiée : c’est un espace qui répond à un usage précis, avec les bons rangements, le bon éclairage, et une implantation pensée pour le confort quotidien, à l’image des principes d’optimisation d’espace qu’on applique dans tout projet d’aménagement intérieur.
Par Clara AJMAR, architecte d’intérieur diplômée & paysagiste DPLG — Mis à jour en mars 2026
Sommaire

L’implantation du bureau : lumière, orientation et circulation
La première décision à prendre pour un bureau chez soi, c’est son implantation. Et le critère numéro un n’est pas le style, c’est la lumière. Idéalement, la fenêtre se trouve sur le côté du poste de travail, pas en face. Une fenêtre face à l’écran crée des reflets et des contrastes qui fatiguent les yeux rapidement. Une fenêtre sur le côté apporte une lumière naturelle douce et permet aussi de regarder dehors ponctuellement, ce qui est bénéfique pour la concentration sur de longues sessions.
Le mur face au bureau est lui aussi important. C’est la surface qu’on regarde en levant les yeux pendant des heures. Il mérite d’être traité avec intention : ni trop neutre et fade, ni trop chargé et distrayant. Pour quelqu’un qui a besoin de stimulation visuelle, une couleur forte ou un papier peint graphique peut aider à maintenir l’énergie. Pour quelqu’un qui a besoin de calme pour se concentrer, une teinte sobre avec quelques éléments bien choisis sera plus efficace.
Bureau sur mesure intégré : rangements, prises et stockage
La grande majorité des bureaux à domicile que je conçois aujourd’hui sont pensés de façon hybride : ce ne sont pas de simples plans avec une chaise, mais des aménagements complets avec rangements intégrés, éclairage dédié, prises et câbles dissimulés, et parfois une porte ou une verrière pour isoler visuellement l’espace. C’est ce qui transforme un coin de pièce en vrai espace de travail.
Sur un projet de salon, j’ai conçu un meuble sur mesure pleine hauteur qui intègre à la fois des rangements fermés, des niches ouvertes, un plan de travail escamotable et un fond en papier peint géométrique visible depuis le reste de la pièce. L’espace de travail est présent et fonctionnel, mais il se fond dans la composition du salon quand il n’est pas utilisé. La verrière sur le côté capte la lumière et crée une liaison visuelle avec la pièce voisine sans perdre l’intimité nécessaire à la concentration.

Les prises et le câblage sont un point souvent négligé qui peut ruiner un aménagement par ailleurs très soigné. Une multiprise qui traîne sur le plan de travail ou un câble qui court le long du mur crée une impression de désordre permanent. Dès la conception, je prévois systématiquement des prises intégrées dans le bureau lui-même, des passages câbles discrets et un point de branchement pour l’éclairage de travail indépendant de l’éclairage général de la pièce.
Le bureau escamotable et le bureau hybride : solutions pour les petits espaces
Quand l’espace manque, le bureau escamotable est souvent la meilleure solution. Sur un projet de suite parentale, j’ai intégré un bureau escamotable dans un meuble sur mesure pleine hauteur, à côté d’un dressing. Le plan de travail se rabat, les rangements au-dessus restent accessibles, et quand le bureau est fermé, rien ne laisse deviner sa présence. L’implantation a été faite près d’une fenêtre latérale pour la lumière naturelle, avec un point câble discret dans le meuble.

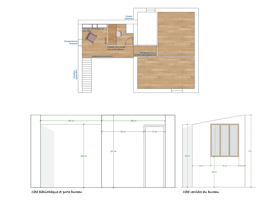
Sur un autre projet, j’ai créé un coin bureau sur une petite mezzanine de passage à l’étage d’une maison. L’espace était initialement peu exploité, juste un couloir en hauteur. En y intégrant un plan de travail sur mesure, une bibliothèque basse, une verrière pour capter la lumière depuis le rez-de-chaussée et un isolant phonique dans les cloisons, cet espace de transition est devenu un vrai bureau bibliothèque avec une atmosphère unique. C’est souvent dans ces espaces résiduels qu’on crée les coins les plus intéressants, à condition d’anticiper l’acoustique et l’éclairage dès le départ.
Ce type de bureau hybride, pensé par un architecte d’intérieur dès la conception du projet global, permet d’intégrer un espace de travail sans sacrifier ni l’esthétique ni la surface habitable du logement.
Mur du bureau chez soi : couleur, forme et traitement décoratif
Le mur face au bureau est une surface active. On le regarde pendant des heures, il contribue à l’ambiance de travail et il apparaît en arrière-plan lors des visioconférences. Il mérite donc un traitement aussi réfléchi que le reste de l’aménagement.
Plusieurs options fonctionnent selon le profil et le style. Une couleur dynamique, comme un vert profond, un bleu nuit ou un terracotta, peut créer un cadre stimulant sans être agressif. Des formes géométriques peintes ou en papier peint apportent du rythme et de la personnalité. Une tapisserie à motif choisi pour sa durabilité visuelle, ni trop chargée ni trop sobre, est souvent le bon compromis entre caractère et confort sur le long terme.
Les tons trop clairs ou trop pastel sont à éviter seuls : ils créent une ambiance molle qui manque d’ancrage. Si on y tient, les associer à des éléments plus soutenus, mobilier sombre, cadres forts, luminaire affirmé, pour rééquilibrer la composition. Pour aller plus loin sur le traitement des murs en couleur, les règles pour travailler la couleur au mur en décoration intérieure donnent une méthode applicable directement à cet espace.
Un bureau chez soi bien conçu, c’est un espace qu’on a envie d’utiliser, qui ne déborde pas visuellement sur le reste du logement et qui résiste à l’usage quotidien sans devenir vite obsolète. C’est souvent dans les détails d’implantation, de câblage, de lumière et de traitement mural que se joue cette différence entre un poste de travail bricolé et un espace vraiment abouti.
Pour voir comment ce type de projet s’articule de la conception à la livraison, retrouvez nos chantiers sur la chaîne ArchiWorking.
Clara
Comment bien positionner son bureau chez soi pour travailler confortablement ?
La fenêtre doit idéalement être sur le côté du poste de travail, pas en face. Cela évite les reflets sur l’écran et apporte une lumière naturelle douce. Le mur face au bureau mérite aussi d’être traité avec intention : ni trop neutre, ni trop chargé, selon votre besoin de stimulation ou de calme pour vous concentrer.
Comment intégrer un bureau sur mesure dans un salon ou une chambre ?
En le concevant comme un meuble à part entière avec rangements intégrés, prises dissimulées et éclairage dédié. Un plan de travail escamotable dans un meuble pleine hauteur permet d’avoir un bureau fonctionnel qui disparaît visuellement quand il n’est pas utilisé. La clé est d’anticiper le câblage et les besoins en prises dès la conception.
Quelle couleur choisir pour le mur de son bureau à domicile ?
Une couleur dynamique comme un vert profond, un bleu nuit ou un terracotta crée un cadre stimulant. Les tons trop clairs ou pastels seuls manquent d’ancrage. Les formes géométriques peintes ou en papier peint apportent du rythme. L’essentiel est de choisir un traitement qui ne lasse pas sur le long terme, car c’est la surface qu’on regarde pendant des heures.
Comment créer un bureau chez soi quand on manque de place ?
Le bureau escamotable intégré dans un meuble sur mesure est souvent la solution la plus efficace. Il ne consomme aucune surface quand il est fermé. Les espaces résiduels comme une mezzanine, un couloir en hauteur ou un angle peu exploité peuvent aussi devenir de vrais espaces de travail avec une verrière pour la lumière et un traitement acoustique adapté.